.jpg)
3137 Southland Road, Decatur, IL
$160,000
Pending
3 Beds
1 Bath
1,232 SqFt
0.49 Acres
1 Car Garage
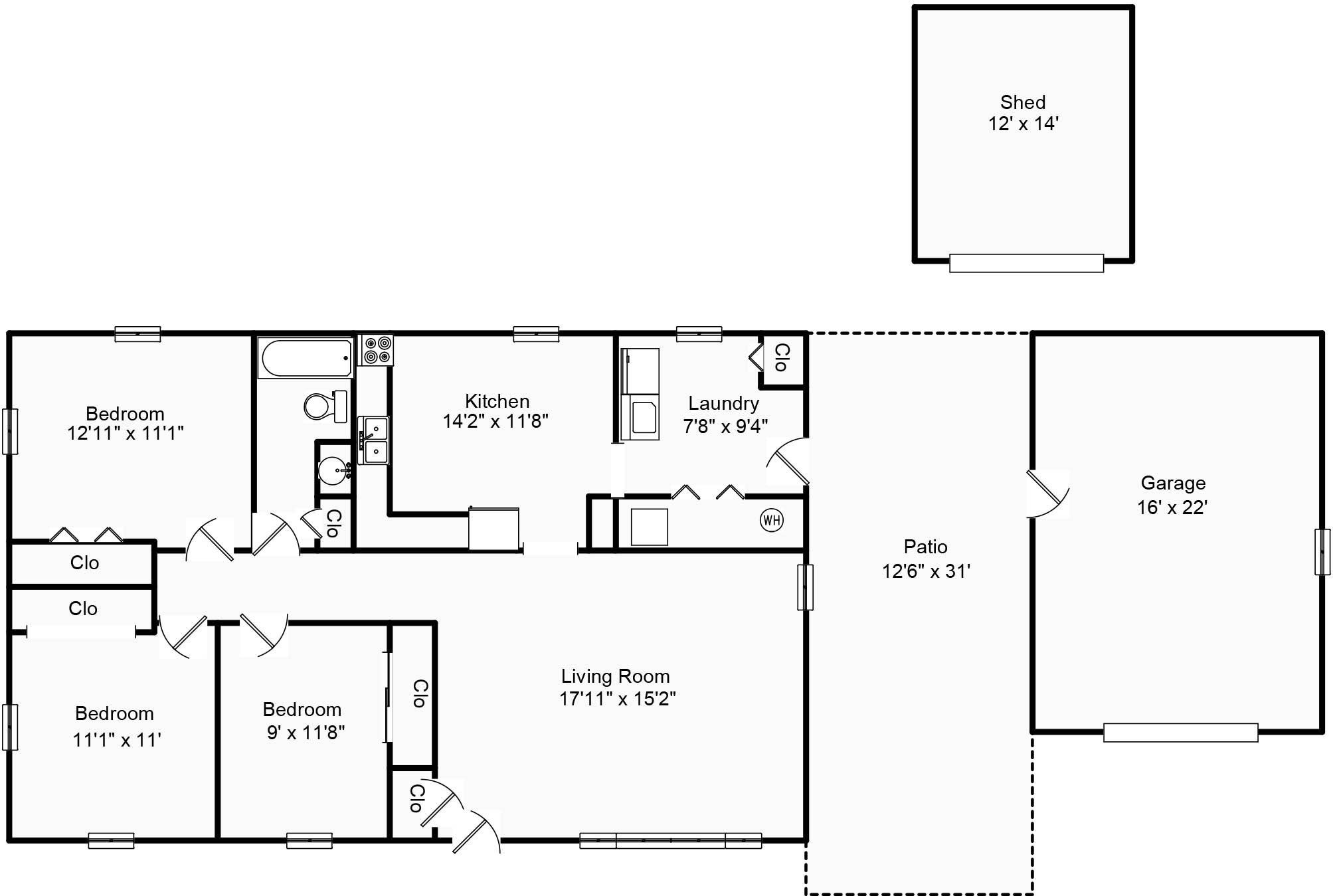
About 3137 Southland Road
Welcome home to this move-in ready ranch in the highly sought-after Mount Zion School District, where comfort and convenience come together on a beautiful corner lot. Imagine relaxing evenings in the fully fenced backyard, grilling on one of the updated patios while kids or pets play freely, or enjoying the extra space and versatility of the large shed with roll-up door, built in 2020. The home has been thoughtfully updated with modern touches including a newer asphalt driveway, ceiling fans, several replacement windows, kitchen back splash and newer furnace and AC—giving you peace of mind for years to come. Inside, the kitchen is equipped with all appliances that stay, including a newer microwave, making move-in a breeze. Thoughtfully crafted for both comfort and style, this home is ready to welcome you and the memories you’ll create here! There is so much to see - call your Realtor today!
Facts & Features
MLS® # | 6255205 |
---|---|
Price | $160,000 |
Cost Per Square Foot | $130 |
Bedrooms | 3 |
Bathrooms | 1.00 |
Full Baths | 1 |
Total Finished Square Feet | 1,232 |
Total Finished Above Grade | 1,232 |
Main | 1,232 |
Acres | 0.49 |
Year Built | 1961 |
Type | Single Family |
Sub-Type | Single Family Residence |
Style | Ranch |
Status | Pending |
Taxes | $2,555 |
Tax Year | 2024 |
Community Information
Address | 3137 Southland Road |
---|---|
Subdivision | Bournedale Add |
City | Decatur |
County | Macon |
State | IL |
Zip Code | 62521 |
Amenities
Parking | Garage, Detached |
---|---|
# of Garage Spaces | 1 |
Is Waterfront | No |
Has Pool | No |
Interior
Appliances | Dishwasher, Gas Water Heater, Dryer, Microwave, Range, Refrigerator, Washer |
---|---|
Heating | Forced Air |
Cooling | Central Air |
Basement | Crawl Space |
Fireplace | No |
# of Stories | 1 |
Stories | One |
Exterior
Exterior Features | Shed, Fence |
---|---|
Roof | Shingle |
Construction | Vinyl Siding |
Foundation | Crawlspace |
School Information
District | Mt Zion Dist 3 |
---|
Additional Information
Date Listed | September 18th, 2025 |
---|---|
Days on Market | 20 |
Zoning | RES |
Listing Details
Agent | Cassandra Anderson |
---|---|
Office | Brinkoetter REALTORS® |